Оферта № 262828

Продава апартаменти, 96 кв.м., в Кючук Париж за 125 050 €

🏢 Нова Сграда в Кючук Париж - Строителството Вече е в Ход!

Имаме удоволствието да ви представим нашия нов проект в квартал Кючук Париж! Сградата вече е в процес на строеж и предлага разнообразие от модерни и удобни апартаменти.

Основни Характеристики:

  • Локация: Квартал Кючук Париж, непосредствено до магазин Билла.
  • Тип Апартамент: Тристаен апартамент.
  • Разположение: Апартаментът е разположен в новострояща се сграда с модерен дизайн и високи стандарти на строителство.

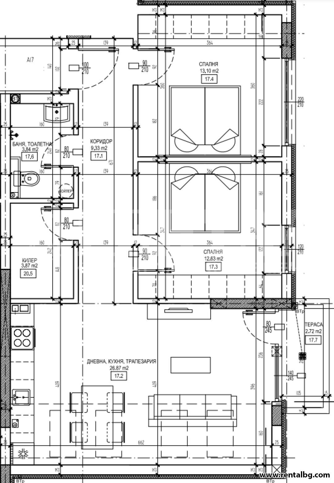
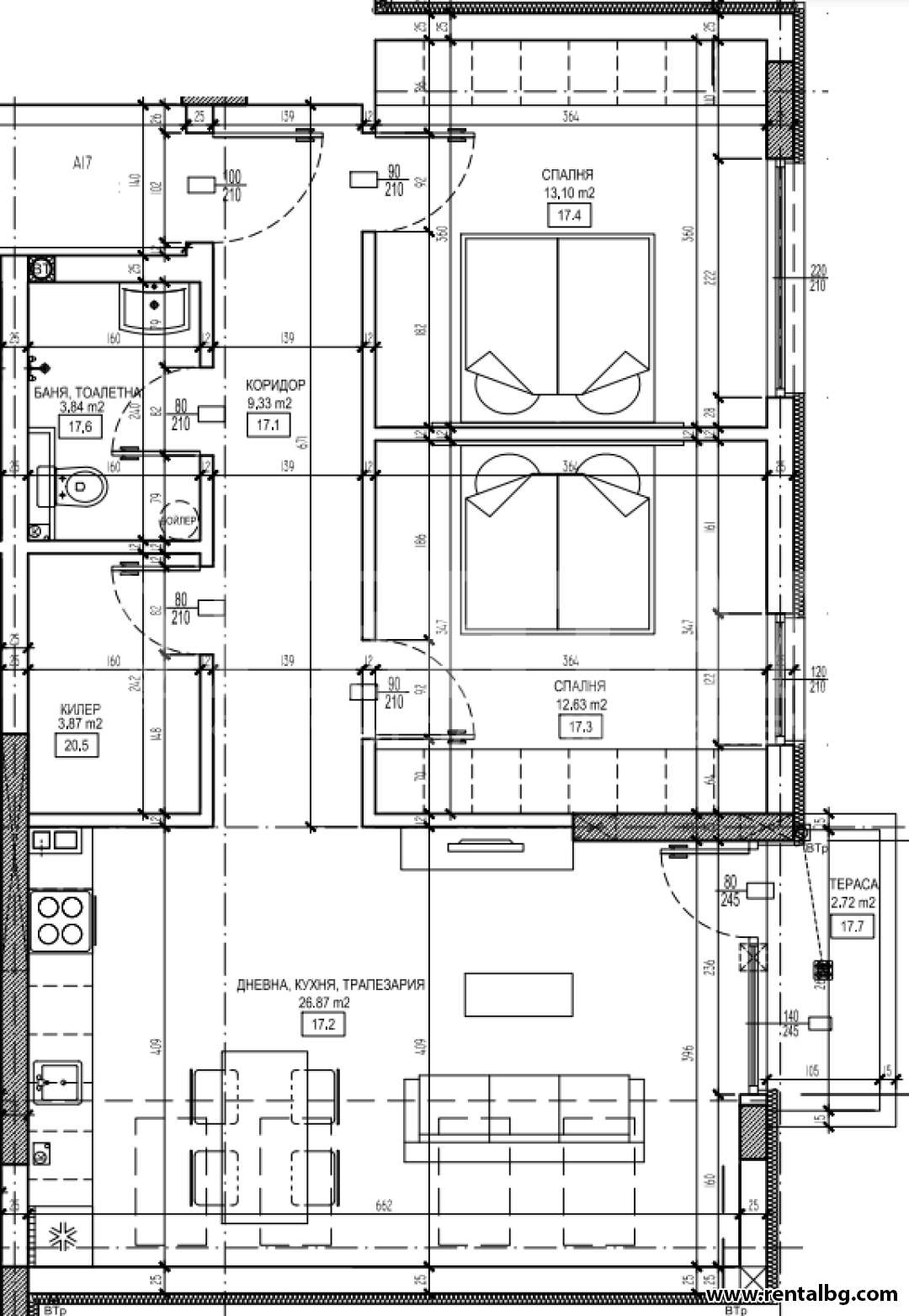
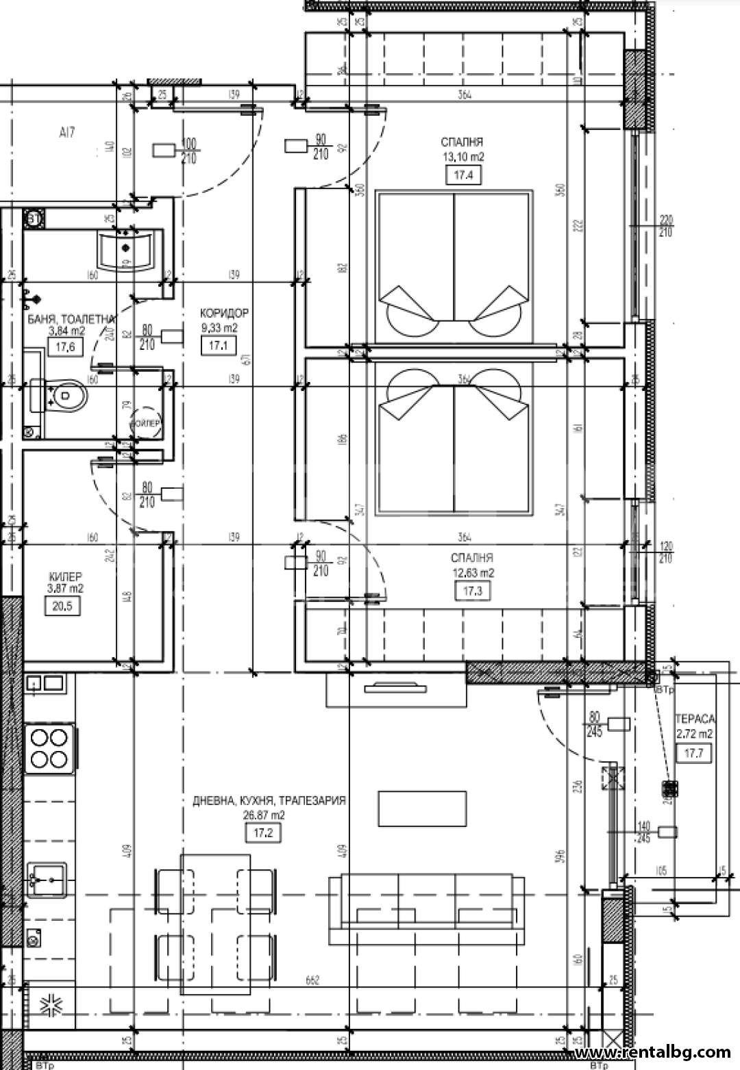
Апартаментът Включва:

  • Хол с Кухненски Бокс: Просторно и светло помещение, идеално за семейни събирания и ежедневни дейности.
  • Две Спални: Уютни и комфортни, подходящи за отдих и релаксация.
  • Две Баня с Тоалетна:
  • Тераса: 

Локация и Удобства:

  • Магазин Билла: На пешеходно разстояние, осигурява удобство за ежедневни покупки.
  • Спирки на Градски Транспорт: Лесен достъп до различни части на града.
  • Детски Градини и Училища: В близост до образователни институции, подходящи за семейства с деца.
  • Ресторанти и Кафенета: Разнообразие от заведения за хранене и развлечения в района.

📞 За повече информация и огледи, моля, свържете се с нас. Не пропускайте възможността да станете част от този нов и динамичен жилищен проект в Кючук Париж!

Тип имот
апартаменти
Вид
тристаен
Строителство
Местоположение
Кючук Париж
Площ
96 кв.м.
Етаж
5
Общо етажи
10
Изложение
Цена
125 050 €
Цена/кв.м.
1303 € /кв.м.

Видео

Галерия

Брокер

Атанас Митев

atanas@rentalbg.com

тел.: 0896 27 28 86

Запитване към оферта

Подобни оферти

...
тристаен
Кючук Париж
86 кв.м.

120 800 €

Агенция РЕНТАЛ предлага за продажба  Тристаен апартамент в кв. Кючук Париж, до парк Белите Брези ! Предлагаме Ви просторен панелен апартамент с п ...
...
тристаен
Кючук Париж
87 кв.м.

125 900 €

оферта 259383 Продава се тристаен апартамент в Кючук Париж, Пловдив Агенция Рентал предлага за продажба тристаен апартамент, разположен в един от на ...
...
тристаен
Кючук Париж
90 кв.м.

117 000 €

Просторен, обзаведен тристаен апартамент в кв. Кючук Париж - Пловдив 📍 В близост до новия търговски център VIA PARK, бул. Александър Стамболийски 🚗 Св ...
...
тристаен
Кючук Париж
96 кв.м.

110 600 €

Агенция за недвижими имоти ” Рентал ” има удоволствието да Ви представи ЕКСКЛУЗИВНО новострояща се сграда в кв. Кючук Париж до ресторант &r ...
...
тристаен
Кючук Париж
105 кв.м.

132 200 €

оферта 254183 Дневна с трапезария и кухненски бокс-27кв.м, 2 спални по 13кв.м всяка, баня с wc, мокро помещение, което може да се направи лесно на в ...
...
тристаен
Кючук Париж
89 кв.м.

106 000 €

Aпартамент в район южен на гр. Пловдив,  Изложението е юг , запад. Разполага с 2 спални , хол , дневна с кухненски бокс, баня и тоалетна отделно, г ...
...
тристаен
Кючук Париж
108 кв.м.

137 000 €

Ексклузивно от Рентал: Тристаен Апартамент в Квартал Кючук Париж в близост до Сточна гара Имаме удоволствието да ви предложим този т ...
...
тристаен
Кючук Париж
94 кв.м.

109 900 €

Продава се апартамент на комуникативна локация в квартал Кючук Париж, срещу Втора градска болница .. Разположен е на втори жилищен етаж о ...
...
тристаен
Кючук Париж
97 кв.м.

123 000 €

оферта 207237 Предлагаме за продажба 3-стаен апартамент в нов жилищен комплекс в близост до бул. Южен. Състои се от две спални,дневна с бокс,баня и ...
...
тристаен
Кючук Париж
96 кв.м.

95 000 €

Апартаментът е с изолация и частично сменена дограма намира се на много комуникативно същевременно и спокойно за живеене място  ...